In the enchanting setting of southern Sardinia, in the renowned village of Torre delle Stelle (municipality of Maracalagonis), just 30 minutes from Cagliari and 40 minutes from Elmas airport, we offer for sale a beautiful independent villa, surrounded by nature and just a few minutes walk from the sea.
Located in a private yet strategic position, the villa is spread over two levels with a total area of approximately 160 sqm, surrounded by a lush and evergreen private garden of 1,300 sqm – ideal for those seeking peace, privacy, and comfort.
The Villa features state of the art solar PV, battery storage and heat pump technology that allows it to attain a one of the highest ecological energy consumption ratings.
Exterior:
The property comes with 1,300 sqm of land most of which is terraced to maximise usability. After the entrance at the first terrace you will find one of the two parking areas with electric car charging station, which then leads up to the main terrace where you will find a further parking area next to the house. The villa is wrapped by three large covered verandas, one of which contains an outdoor kitchen and BBQ area, perfect for outdoor lunches, dinners, or aperitifs while enjoying the Mediterranean climate in every season.
Interior:
The whole house has been recently renovated to a high standard so all fittings and much of the furniture is new. The home comes fully furnished making it perfect as a ready made solution for a short term rental investment and with very little work required. (Looking to rent out? Ajò can help with that also)
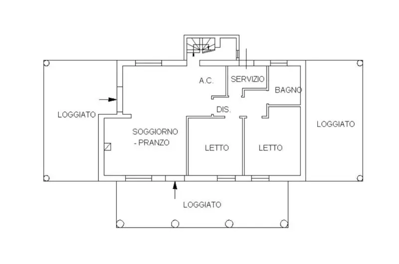
Ground floor (approx. 80 sqm):
- Spacious open-plan L shape area with exits out to two of the three varanda’s. It contains a comfy living room with a large smart TV and a dining table next to a corner fitted kitchen.
- Storage room
- Hallway leading to the sleeping area
- Double bedroom
- Smaller bedroom containing a single bed and a bunk bed ideal for families with children
- Family Bathroom with double shower
- Laundry room with a second toilet and a sink
First floor -converted loft space (approx. 80 sqm):
- Loft space configured as two large double bedrooms and bathroom with shower
- Spacious storage room
Location:
The villa is just 500 meters walk from the sea, easily reachable in a few minutes. The beaches in this area, with their fine white sand and crystal-clear waters, offer beach services, restaurants, and bars, making this home ideal both as a main residence and as a prestigious summer getaway.
Technical features and comforts:
This property has been completely renovated with a focus on energy efficiency and living comfort:
- 10 kW photovoltaic system with 10 kWh lithium battery storage
- Heat pump boiler with 300-liter solar panels
- Gas boiler pre-installed
- Air-to-water chiller and fan coil climate control system
- Air-to-air heat pumps in all rooms
- Pellet stove on the ground floor
- Emergency electric water heaters in both bathrooms
- Energy Class A4 – maximum efficiency, comfortable year-round
- Broadband Internet
- Large Smart TV
- CCTV Security and alarm system
- Washing Machine
- EV charging Station
A home that blends nature, technology, and comfort, just steps from one of the most beautiful seas in Sardinia.
Contact us for more information or to schedule a visit.
























































