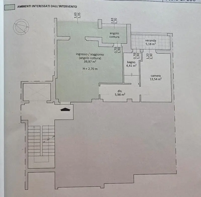
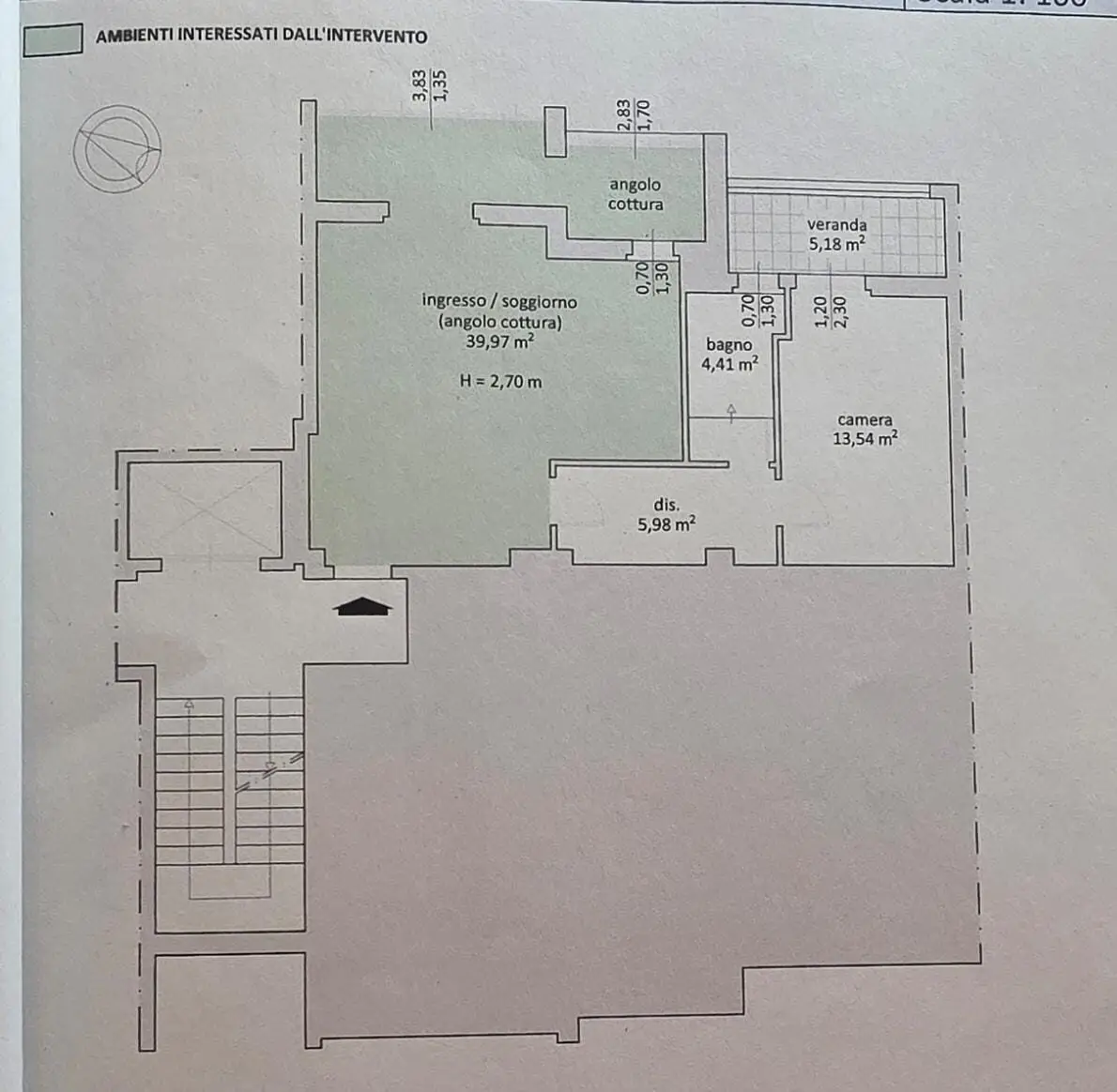
Appartamento luminoso e finemente ristrutturato, situato al secondo piano con ascensore e dotato di posto auto. L’immobile si estende per circa 75 m² catastali e offre ambienti moderni e confortevoli.
L’ingresso conduce a un ampio soggiorno di circa 40 m², uno spazio particolarmente versatile che, grazie alle generose dimensioni, consente di ricavare una seconda camera da letto o uno studio, in base alle esigenze del futuro proprietario. L’angolo cottura è stato sapientemente realizzato nella veranda chiusa, regolarmente autorizzata tramite pratica edilizia.
Un comodo andito conduce alla zona notte, composta da una camera da letto con balcone e da un bagno finestrato.
Soluzione ideale per chi cerca comfort, funzionalità e la possibilità di personalizzare gli spazi.
Ubicazione – Pitz’e Serra (Quartu Sant’Elena)
- Posizione strategica e collegamenti – Accessibilità: ottimi collegamenti con autobus e strada statale, facilità di spostamento verso Cagliari e altre zone. Pitz’e Serra è un quartiere residenziale di Quartu Sant’Elena, con facile accesso alle principali vie di comunicazione. È ben collegata con Cagliari grazie anche alla SS 554, che la rende un punto comodo per chi lavora o studia in città. I mezzi pubblici sono ben presenti: le linee di autobus (1Q, 41, PQ, etc.) fermano nella zona, garantendo buoni collegamenti con Quartu e Cagliari.
- Servizi e attività commerciali: Servizi completi: negozi, farmacia, attività commerciali, scuole nelle vicinanze. La zona è “servitissima”: ci sono negozi, supermercati e attività commerciali di prima necessità. È presente anche una farmacia vicina, utile per famiglie e residenti. Sono disponibili locali commerciali nella zona, segno che Pitz’e Serra ha una vita commerciale attiva e potenziale per attività imprenditoriali. Sono presenti diverse strutture sportive, sia pubbliche che private, nella zona. Il quartiere ha un tessuto edilizio residenziale moderno: edifici multipiano ben strutturati con condomini, ascensori, spazi ben curati. C’è anche il Parco Europa nelle immediate vicinanze, che offre spazi verdi per il tempo libero.
- Vivibilità e qualità della vita: Contesto residenziale curato: edifici moderni, palazzine ben mantenute, presenza di spazi verdi. Attrattiva immobiliare: prezzo medio stabile ma vivace, segmento richiesto per chi cerca una zona strategica ma tranquilla.
- Potenziale per investimento: oltre residenziale e turistico, anche commerciale (locali in vendita, visibilità, traffico locale).
Grazie alla sua posizione, Pitz’e Serra offre un buon bilanciamento tra tranquillità residenziale e accesso ai servizi: è lontana dal caos del centro città ma non isolata. Gli edifici più recenti (anni ’90 in poi) sono ben mantenuti, con palazzine moderne e buone rifiniture.
La zona è adatta a famiglie, professionisti e investitori: è ben collegata, ben servita e ha un mercato immobiliare interessante.







































